(728) 2857473

55 1275 8391

Renta Nave Industrial 729 m² en Castelli Park Mérida, Yucatán

Mérida, Mérida, Yucatán

  • Nave industrial
  • 729.11 m² de construcción
  • 729.11 m² de terreno
  • $70,480 En Renta

Descripción

Nave industrial en Mérida disponible para renta con todos los permisos en regla. Ubicada en Castelli Park, el parque industrial con acceso inmediato al Periférico y al Anillo Vial Metropolitano, además de una conexión estratégica con los principales nodos logísticos del sureste: Puerto Progreso, Tren Maya y Aeropuerto Internacional de Mérida.

Nave configurable con posibilidad de integrar oficinas ejecutivas, sistemas contra incendio y CCTV, ideal para uso de almacenamiento, distribución o logística.

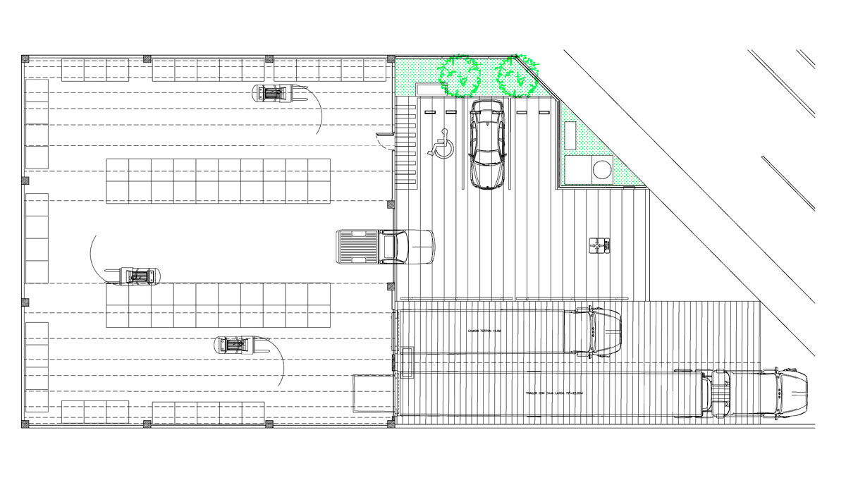
Características de la nave:

- 729.11 m2 terreno privado
- 400.52 m2 techados
- 328.59 m2 patios de maniobras y andenes
- Altura máxima 10m
- 3 cajones de estacionamiento independientes para vehículos
- 2 andenes para carga y descarga independientes en cada nave
- Rampa para vehículos ligeros y pesados
- Pisos MR de alta resistencia
- Servicios independientes por nave (agua, acometida eléctrica en tres fases, fibra óptica)
- Patios de maniobras con posibilidad de cerca perimetral
-Oficinas con comedor y núcleos sanitarios (opcional)
- Cortinas enrollables mecánicas

Beneficios del parque:

-Ecotecnologías
- Urbanización de primer nivel
- Control de acceso
- Vigilancia 24/7
- Vialidades con asfalto
- Iluminación urbana solar
- Drenaje pluvial (Recarga de mantos acuíferos)
- Fibra óptica
- Red de agua potable
- Hotel operativo

En Castelli Park no solo adquieres una inversión estratégica, sino un modelo integral de soluciones ilimitadas.

Contáctanos hoy y agenda tu visita.

Características

Exterior
  • Andén
General
  • Accesibilidad para personas con discapacidad
  • Seguridad 24 horas

Detalles

ID:EB-UF9419
Clave interna:NAVE53
Tipo:Nave industrial
Renta: $70,480
Antigüedad:A estrenar
Estacionamientos:3
Construcción:729.11 m²
Terreno:729.11 m²
Pisos:1