Quality Arteaga

  • 7282857473
  • quality-arteaga.easybroker.com

Renta Nave Industrial 729 m² en Castelli Park Mérida, Yucatán

Mérida, Mérida

$70,480 For Rent

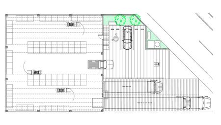
  • 3 Parking spaces
  • 729.11 m² total space
  • 729.11 m² Lot Size
  • 1 Floors
  • New Age
  • EB-UF9419 ID
Description

Nave industrial en Mérida disponible para renta con todos los permisos en regla. Ubicada en Castelli Park, el parque industrial con acceso inmediato al Periférico y al Anillo Vial Metropolitano, además de una conexión estratégica con los principales nodos logísticos del sureste: Puerto Progreso, Tren Maya y Aeropuerto Internacional de Mérida.

Nave configurable con posibilidad de integrar oficinas ejecutivas, sistemas contra incendio y CCTV, ideal para uso de almacenamiento, distribución o logística.

Características de la nave:

- 729.11 m2 terreno privado
- 400.52 m2 techados
- 328.59 m2 patios de maniobras y andenes
- Altura máxima 10m
- 3 cajones de estacionamiento independientes para vehículos
- 2 andenes para carga y descarga independientes en cada nave
- Rampa para vehículos ligeros y pesados
- Pisos MR de alta resistencia
- Servicios independientes por nave (agua, acometida eléctrica en tres fases, fibra óptica)
- Patios de maniobras con posibilidad de cerca perimetral
-Oficinas con comedor y núcleos sanitarios (opcional)
- Cortinas enrollables mecánicas

Beneficios del parque:

-Ecotecnologías
- Urbanización de primer nivel
- Control de acceso
- Vigilancia 24/7
- Vialidades con asfalto
- Iluminación urbana solar
- Drenaje pluvial (Recarga de mantos acuíferos)
- Fibra óptica
- Red de agua potable
- Hotel operativo

En Castelli Park no solo adquieres una inversión estratégica, sino un modelo integral de soluciones ilimitadas.

Contáctanos hoy y agenda tu visita.

Amenities
  • Platform
  • Handicap accessible
  • 24 Hour Security

Quality Arteaga

  • 7282857473
  • quality-arteaga.easybroker.com