(728) 2857473

55 1275 8391

Renta Nave Industrial 800 m² en Castelli Park Mérida, Yucatán

Mérida, Mérida, Yucatán

  • Nave industrial
  • 800 m² de construcción
  • 800 m² de terreno
  • $66,551 En Renta

Descripción

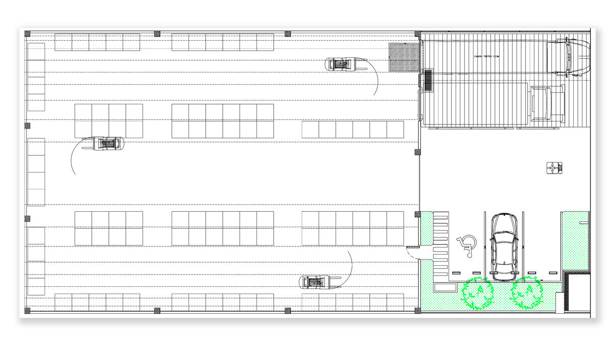
Nave industrial en Mérida disponible para renta, lista para operar en diciembre con todos los permisos en regla. Ubicada en Castelli Park, el parque industrial con acceso inmediato al Periférico y al Anillo Vial Metropolitano, además de una conexión estratégica con los principales nodos logísticos del sureste: Puerto Progreso, Tren Maya y Aeropuerto Internacional de Mérida.

Nave configurable con posibilidad de integrar oficinas ejecutivas, sistemas contra incendio y CCTV, ideal para uso de almacenamiento, distribución o logística.

Características de la nave:

- 800 m2 terreno privado
- 560 m2 techados
- 240 m2 patios de maniobras y andenes
- Altura máxima 10m
- 3 cajones de estacionamiento independientes para vehículos
- 2 andenes para carga y descarga independientes en cada nave
- Rampa para vehículos ligeros y pesados
- Pisos MR de alta resistencia
- Servicios independientes por nave (agua, acometida eléctrica en tres fases, fibra óptica)
- Patios de maniobras con posibilidad de cerca perimetral
-Oficinas con comedor y núcleos sanitarios (opcional)
- Cortinas enrollables mecánicas

Beneficios del parque:

-Ecotecnologías
- Urbanización de primer nivel
- Control de acceso
- Vigilancia 24/7
- Vialidades con asfalto
- Iluminación urbana solar
- Drenaje pluvial (Recarga de mantos acuíferos)
- Fibra óptica
- Red de agua potable
- Hotel operativo

En Castelli Park no solo adquieres una inversión estratégica, sino un modelo integral de soluciones ilimitadas.

Contáctanos hoy y agenda tu visita.

Características

Exterior
  • Andén
  • Facilidad para estacionarse
General
  • Accesibilidad para personas con discapacidad
  • Seguridad 24 horas

Detalles

ID:EB-UF8569
Clave interna:45
Tipo:Nave industrial
Renta: $66,551
Antigüedad:A estrenar
Estacionamientos:3
Construcción:800 m²
Terreno:800 m²
Pisos:1