Quality Arteaga

  • 7282857473
  • quality-arteaga.easybroker.com

Nave Industrial con Cámaras Frías en Av. Colegios

Alfredo V Bonfil, Benito Juárez

$78,000,000 For Sale

  • 1,519 m² total space
  • 7,040 m² Lot Size
  • EB-UV4408 ID
Description

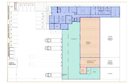
Se proyecta una bodega con cámaras de refrigeración y congelación para resguardo de alimentos, además de un área de oficinas administrativas, área de baños y comedor para empleados.

El área de oficinas consta de recepción con sala de espera, oficinas privadas, área de trabajo general, gerencia, sala de juntas, área de comedor de exhibición, y una tienda de productos al publico.

Dentro del área para empleados están los baños con vestidor, comedor para empleados, y lavandería, cumpliendo con los espacios requeridos para los procesos de la empresa.

El anden y las cámaras cuentan con un recubrimiento epóxico a base de resinas logrando un polímero termoestable el cual permite una superficie muy endurecida para una mayor resistencia al trafico, se comunican con las oficinas por medio de un área de sanitización, como barrera de higiene para evitar la contaminación del área de almacenamiento de comida.

La estructura es metálica, con marcos de columnas y vigas IPR, para cargar muros y cubierta de panel aislante tipo sandwich, son elementos de construcción recuperables ya que se pueden armar y desarmar , ademas de ser material 100% térmicos ya que cuentan con un núcleo de poliuretano expandido de alta densidad.

Patio de maniobras esta conformado con placas de concreto armado de 20 cm de espesor.

Cimentación esta conformado con zapatas aisladas y corridas , que a su vez soportan muros de contención y dados de concreto.

ÁREA DE OFICINAS Y EMPLEADOS: 471.48M²
ÁREA DE ANDEN: 553.94M²
ÁREA CÁMARAS DE CONGELACION: 494.10M²
TOTAL CONTRUCCION: 1,519.51M²
POLÍGONO: 7,040.01M²

Quality Arteaga

  • 7282857473
  • quality-arteaga.easybroker.com

Quality Arteaga

  • 7282857473
  • quality-arteaga.easybroker.com