Quality Arteaga

  • 7282857473
  • quality-arteaga.easybroker.com

Bodega Industrial con Oficinas en Venta Iztapalapa

Granjas Estrella, Iztapalapa

$87,064,000 For Sale

  • 10 Parking spaces
  • 4,602 m² total space
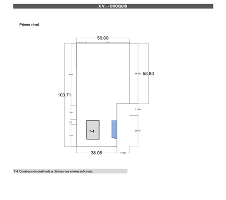
  • 4,501 m² Lot Size
  • 100.71 m Lot Length
  • 38 m Lot Width
  • 1 Floors
  • 2020 Age
  • EB-UE1763 ID
Description

*¡Nave Industrial en Iztapalapa con Gran Potencial para Desarrollos Habitacionales!*

*Ubicación:* Iztapalapa, Ciudad de México.

Descubre esta increíble oportunidad de adquirir una Nave Industrial con un total de 4500 metros cuadrados de terreno y 4600 metros de construcción en una ubicación estratégica en Iztapalapa. Este impresionante inmueble cuenta con:

*Características Destacadas:*
- *Terreno y Construcción:* 4500 metros de terreno y 4600 metros de construcción, ofreciendo amplitud y versatilidad para diversos proyectos.
- *Oficinas Incluidas:* Oficinas integradas para gestionar operaciones y proyectos desde el mismo lugar.
- *Potencial para Desarrollos Habitacionales:* Uso de suelo habilitado para construcción de viviendas, con permiso para Hasta 9 niveles una vivienda cada 100 metros.
- *Locales Comerciales Permitidos:* Diseñado para albergar 200 departamentos con espacios comerciales esenciales para una comunidad vibrante.

*¡Convierte Esta Nave en el Centro de tu Próximo Proyecto Residencial y Comercial en Iztapalapa!*

Este inmueble en Iztapalapa ofrece posibilidades ilimitadas para el desarrollo y la creación de un proyecto habitacional único que satisface las necesidades de la comunidad y ofrece espacios comerciales esenciales.

*Detalles Adicionales:*
- *Precio y Condiciones:* Consulta para más detalles sobre el precio y alcance del proyecto.
- *Ubicación Estratégica:* Situado en una zona de alto potencial y demanda en Iztapalapa.

*¡Contáctanos para Explorar este Espacio Versátil y Concretar tu Proyecto de Desarrollo en Iztapalapa!*

Aprovecha esta oportunidad única para adquirir una Nave Industrial con un potencial excepcional para desarrollos residenciales y comerciales en una ubicación privilegiada. ¡Contáctanos hoy mismo para conocer más detalles y comenzar a convertir tu visión en realidad en Iztapalapa!

Amenities
  • Platform
  • Cistern
  • Street parking
  • Storge Unit
  • Closed-Circuit Security System
  • 24 Hour Security

Quality Arteaga

  • 7282857473
  • quality-arteaga.easybroker.com

Quality Arteaga

  • 7282857473
  • quality-arteaga.easybroker.com